Piazza Enrico Toti 11 - Vanchiglietta - Torino (TO)
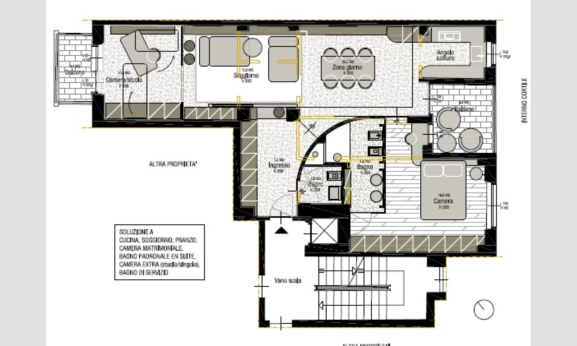
Rif. Ampio trilocale ristrutturato a nuovo!
287000 €
Ampio trilocale ristrutturato a nuovo!
Agenzia Vanchiglia - Vanchiglietta - Corso Belgio, 74/A - Torino
Agenzia San Salvario - Centro - Via Nizza, 66/A - Torino

DIMENSIONECASA è un’azienda che sa proporsi a 360° gradi, che sa cogliere per prima le esigenze e le necessità del cliente, avendo la possibilità di offrire una gamma di prodotti sempre più vasta e sempre più aggiornata e competitiva.
Associato F.I.M.A.A.
