Appartamento in Vendita in Torino Vanchiglietta [1]
Piazza Enrico Toti 11 - Vanchiglietta - Torino (TO)
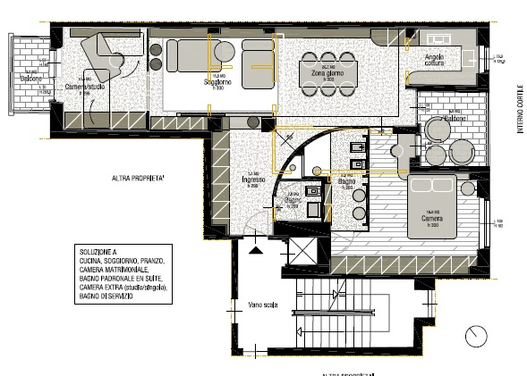
Rif. Ampio trilocale ristrutturato a nuovo!
AMPIO TRILOCALE - TRE SOLUZIONI DI PERSONALIZZAZIONE DEGLI INTERNI
A pochi passi dalla passeggiata del Lungo Po Antonelli, su Piazza Enrico Toti, in una posizione ideale, ben servita dai mezzi pubblici e comoda per raggiungere brevemente il centro città, proponiamo in vendita appartamento di 93 m² commerciali, completamente ristrutturato a nuovo, composto da un ingresso living che si apre su un'ampia zona giorno con cucina a vista, perfetta per accogliere amici e familiari. L'immobile dispone di due camere spaziose e doppi servizi, di cui uno finestrato ed una pratica lavanderia. Completa la proprietà una cantina al piano interrato. L'alloggio dispone di un balcone ed un piccolo terrazzino (misure 3mt x 2mt), ideale per pranzare all'esterno ospitando fino a quattro persone. Subito dispobinile, questo appartamento offre anche la possibilità di personalizzare gli interni secondo le proprie esigenze, con tre soluzioni di personalizzazione disponibili. OTTIMO CAPITOLATO. Approfitta delle detrazioni fiscali fino a € 48.000 come prima casa! Non lasciarti sfuggire questa occasione unica: da vedere assolutamente! Classe energetica C. Prezzo di vendita € 287.000.




