Casa Singola in Vendita in Sciolze Precollina [1]
tetti ravera - Precollina - sciolze (TO)
Rif. casa indipendente a Sciolze
Sciolze Regione Tetti Ravera
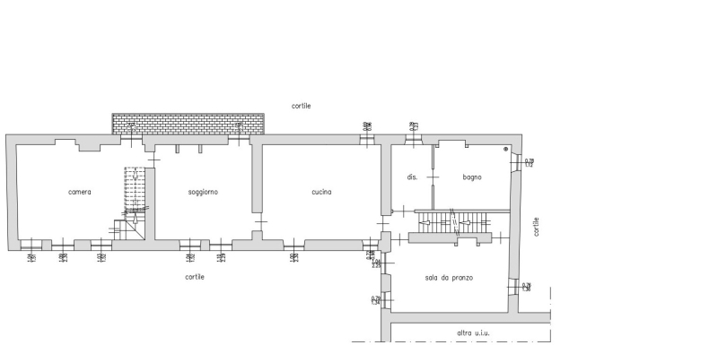
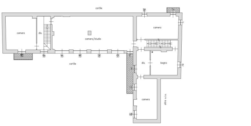
Regione Tetti Ravera In posizione comoda e allo stesso tempo circondata del verde lo studio Dimensionecasa propone in vendita una soluzione indipendente di ampia metratura. La superficie commerciale e di 398Mq e si sviluppa su due livelli oltre il piano cantine e la zona del sottotetto entrambe comodamente accessibili da scale interne all'abitazione. Al piano terreno troviamo una zona soggiorno dotata di termocamino che va ad alimentare tutto l'impianto di riscaldamento oltre ad implementare la produzione di acqua calda, un'ampia cucina abitabile tre camere e un ampio bagno; al primo piano invece troviamo un'ampia zona open space eventualmente divisibile e che si presta bene a qualsiasi uso si voglia fare, tre camere e un ampio e comodo bagno. Il primo piano è raggiungibile da due diverse scale all'interno della casa garantendo privacy e tranquillità e dando anche la possibilità di frazionare la casa in due unità abitative. A completare la proprietà troviamo un ampio cortile esterno con box auto oltre al giardino e una parte di bosco con alberi da frutto.


